
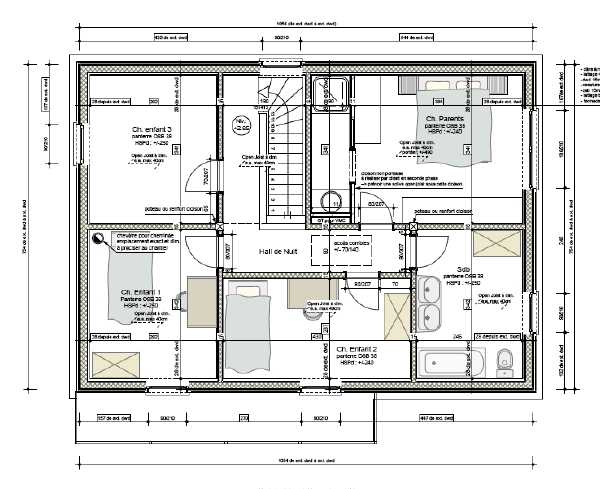
Projet d’une habitation ou l’utilisation de chaque mètre carré a été étudié de manière optimum afin de permettre, malgré un budget limitée (En auto construction partielle nous nous sommes limités à 184 m2 murs extérieures compris), un programme ambitieux : En plus d’un vaste living/cuisine, on retrouve en effet dans cette maison, 4 chambres à coucher, une sdb familiale, une salle de douche pour les parents, et un espace bureau.
Au niveau du chauffage, cette maison est chauffée uniquement au moyen d’un poêle à Pellet placé devant un « mur trombe » accumulateur de chaleur. Une ventilation mécanique double flux, raccordée a un « puits canadien » assure la bonne ventilation contrôlée de l’ensemble dont l’étanchéité à l’air fait également l’objet d’une grande attention.





